Close
首頁
房屋出售
房屋出租
社區大樓
土地查詢
委託買賣
公司簡介
精英團隊
人才招募
不動產知識
google查詢
台南市北區別墅出售
首頁
房屋出售
房屋出租
社區大樓
土地查詢
委託買賣
公司簡介
精英團隊
人才招募
不動產知識
google查詢
首頁
›
房屋出售
›
台南別墅
›
北區別墅
›
台南市北區別墅出售
台南市北區別墅出售|專鄭仔寮地30併排双車墅
售
專│鄭仔寮地30併排双車墅
列印
售2680萬
案號:
0022310
類型:
別墅
總登記坪數:
84.85坪
每坪單價:
31.59萬/坪
地址:
台南市北區育賢街
劉韋伶
(煩請告知聯絡人,您是在House-Info房屋網看到廣告,感恩幫忙)
0955-187-273
市話:
06-2686655
公司名稱:
www.0955187273.com .幸福家崇善店. 劉韋伶
公司地址:
台南市東區幸福家崇善直營店/劉韋伶服務專線0955187273
我要留言
物件介紹
詳細資料
銷售狀態
:
帶看中
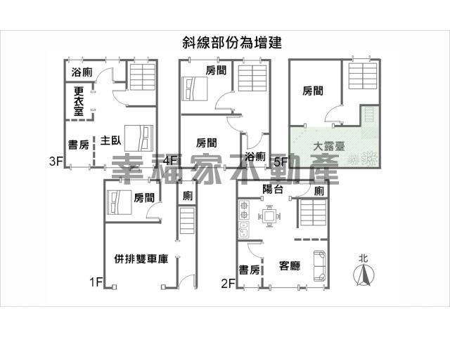
格局
:
5房,2廳,4衛,1廚房
屋齡
:
23年
座向
:
朝南
所在樓層
:
總共5樓
電梯
:
未知
是否凶宅
:
不是
瀏覽人次
:
33人次
特色描述
1.地約30坪、約6.5米大面寬、並排雙車庫。 2.朝南,冬暖夏涼、浴廁間間開窗,通風佳。 3.臺邦建設、英格蘭社區,品質保證。 4.走路可到全聯、小北夜市、公園、超商。 5.鄰近新光三越,坐擁地段與機能雙重優勢。
北區別墅-0
北區別墅-1
北區別墅-2
北區別墅-3
北區別墅-4
北區別墅-5
北區別墅-6
北區別墅-7
北區別墅-8
北區別墅-9
北區別墅-10
北區別墅-11
北區別墅-12
北區別墅-13
北區別墅-14
物件留言
請注意,如果您詢問的內容與物件不相符合或是廣告,經過審核,系統將會直接刪除您的發問內容
相似物件
北區
售6600萬
北區育德二路
類型:別墅
坪數:158.1坪
格局:10房
北區
售2880萬
北區北門路二段
類型:別墅
坪數:56.99坪
格局:11房
北區
售660萬
北區南園街
類型:別墅
坪數:27.76坪
格局:4房
北區
售3180萬
北區中華北路二段
類型:別墅_店面
坪數:90.99坪
格局:5房
北區
售2998萬
北區大興街
類型:別墅
坪數:54.61坪
格局:5房
北區
售3438萬
北區大興街
類型:別墅
坪數:49.03坪
格局:5房
住宅分類
七股別墅
下營別墅
大內別墅
山上別墅
中西區別墅
仁德別墅
六甲別墅
北門別墅
北區別墅
左鎮別墅
永康別墅
玉井別墅
白河別墅
安平別墅
安定別墅
安南別墅
西港別墅
佳里別墅
官田別墅
東山別墅
東區別墅
南化別墅
南區別墅
後壁別墅
柳營別墅
將軍別墅
麻豆別墅
善化別墅
新化別墅
新市別墅
新營別墅
楠西別墅
學甲別墅
龍崎別墅
歸仁別墅
關廟別墅
鹽水別墅
免責聲明:House-Info房屋網平台系統為租用式開放房屋買賣網站建置平台,僅提供會員查詢-
台南市
,
北區
,
別墅
-等房屋資訊參考,並不涉入任何諮詢、交易。 物件(服務)聯絡人公佈的資訊、文字、照片、圖形、產權、廣告內容、或其他資料若有不實或違法情事,或與客戶聯絡交易過程中若衍生民事或刑事等法律問題,皆與House-Info房屋網站無關,所有商標、文章、名稱等版權,皆歸屬原著作者所有!
台南房屋
|
台南市房子
|
台南房子
|
買台南房屋
|
台南市房屋
|
台南買房子
資料處理中,請稍後...